Transport en commun RERRER Ligne CPont de l'almaMétroMétro Ligne 8La Tour-MaubourgMétroMétro Ligne 9Alma-MarceauMétroMétro Ligne 8Métro Ligne 13Invalides

Un immeuble indépendant de bureaux à vendre à PARIS 7 (75007), métro LA TOUR MAUBOURG, 1121 m² dans un hôtel particulier de bon standing

MétroMétro Ligne 8 LATOUR MAUBOURG

1 121 m² non divisibles

14 000 000 €
12 489 € / m²


Immeuble, prestations et services

Chauffage collectif ERP/PMR Standing

L'immeuble a obtenu un classement ERP de type R en :

- 5ème catégorie.

- Effectif maximum des élèves et du personnel présents simultanément dans l’établissement : 99 personnes (nombre déclaré par le responsable de l’établissement).

- Limiter à 19 le nombre de personnes simultanément dans les locaux ne comportant qu’un seul dégagement (3ème et 4ème étage).

Etat intérieur de l'immeuble : prévoir des travaux de rénovation.

Informations au 01/12/2016

Les biens s'inscrivent dans un hôtel particulier construit dans les années 1900, principalement constitué d'un bâtiment sur rue.

A destination de bureaux, ses façades pierres de taille viennent d'être ravalées.

Ses parties communes sont de bon standing.

Les prestations de chauffage sont produites par l'immeuble.

Ses prestations générales regroupent interphone et accès sécurisés.

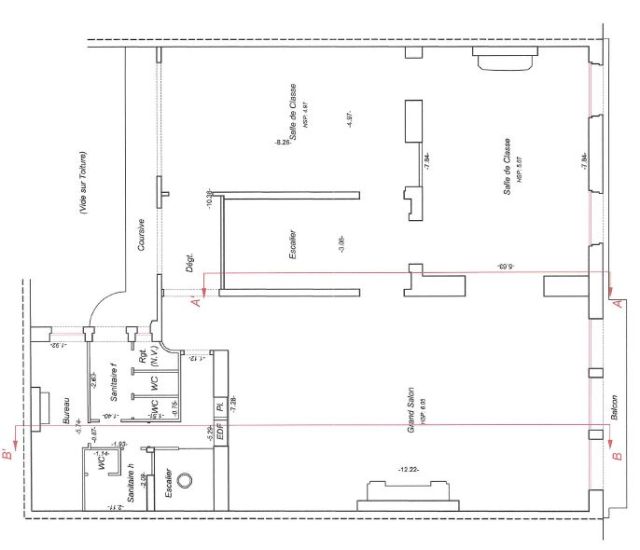
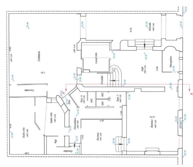
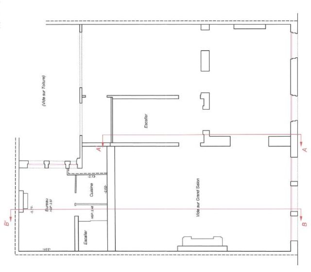
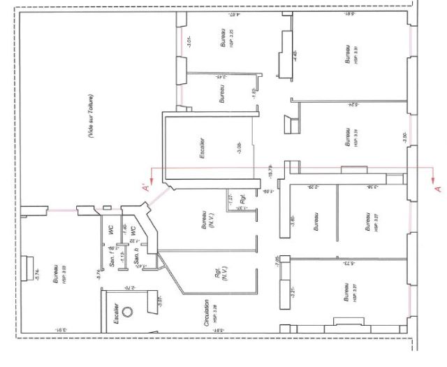
Tableau de surfaces

Niveau Type Surface
4èmeBUREAUX214 m²
3èmeBUREAUX30 m²
2èmeBUREAUX249 m²
1erBUREAUX205 m²
RDCBUREAUX284 m²
-1LOCAUX TECHNIQUES139 m²
RDC<1m8055 m²

Conditions financières et juridiques

12 489 € / m²

Plus faible valeur du marché

16 280 € / m²

Plus forte valeur du marché

29 412 € / m²
  • Prix net vendeur

    14 000 000 €

  • Charges annuelles

    En cours de validation

  • Impôt foncier

    En cours de validation

  • Taxe sur les bureaux

    17,08 €

  • Consommation énergétique

    En cours

  • Gaz à effet de serre

    En cours

  • Surfaces et affectations en cours de validation
  • Cession de l'actif libre de location ou d'occupation.
  • Vente de gré à gré.
  • Cession soumise aux droits d'enregistrement.
  • Le prix de vente s'exprime NET VENDEUR. L'assiette utilisée pour le calcul les droits de mutation (7% environ) n'inclut pas les honoraires de commercialisation hors TVA à la charge de l'acquéreur.

PARTAGER

Laurent MEIMOUN

Laurent MEIMOUN

Nous appeler
Selectionner cette offre Imprimer cette offre
Réf. 3743

Les offres similaires