Transport en commun MétroMétro Ligne 11TelegrapheMétroMétro Ligne 11Porte des LilasTramwayPorte des Lilas

Des bureaux à vendre à PARIS 20 (75020), métro Télégraphe, 80 m² de bureaux dans un immeuble de standing

MétroMétro Ligne 11 TéLéGRAPHE

80 m² non divisibles

510 000 €
6 375 € / m²


Immeuble, prestations et services

Chauffage collectif ERP/PMR Gardien Standing

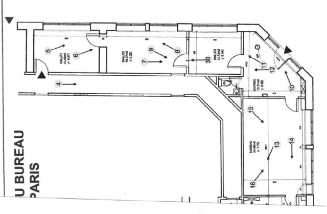
Au RDC : une surface à usage de bureaux composée d'une entrée, 3 bureaux, un open space et un sanitaire. Grande souplesse d'aménagement. Belle hauteur-sous-plafond.

Double accès rue et parties communes.

Moquette, faux-plafonds, doubles vitrages, grandes baies vitrées.

Plinthes périphériques, câblage informatique.

Etat des biens : très bon état.

Informations au 22/05/2018

Les biens s'inscrivent dans un immeuble ancien, principalement constitué d'un bâtiment sur rue et cour.

A destination mixte, bureaux et résidentiel, ses façades pierres de taille sont en bon état de ravalement.

Ses parties communes sont de bon standing.

Les prestations de chauffage sont produites par l'immeuble.

Ses prestations générales regroupent ascenseurs, interphone, digicode, gardien, accès sécurisés.

Tableau de surfaces

Niveau Type Surface
RDCBUREAUX80 m²

Conditions financières et juridiques

6 375 € / m²

Plus faible valeur du marché

5 491 € / m²

Plus forte valeur du marché

9 153 € / m²
  • Prix net vendeur

    510 000 €

  • Charges annuelles

    En cours de validation

  • Impôt foncier

    En cours de validation

  • Taxe sur les bureaux

    17,55 €

  • Consommation énergétique

    En cours

  • Gaz à effet de serre

    En cours

  • Surfaces et affectations en cours de validation
  • Cession de l'actif libre de location ou d'occupation.
  • Vente de gré à gré.
  • Cession soumise aux droits d'enregistrement.
  • Le prix de vente s'exprime NET VENDEUR. L'assiette utilisée pour le calcul les droits de mutation (7,5% environ) n'inclut pas les honoraires hors TVA à la charge de l'acquéreur.

PARTAGER

Valérie AKNIN

Valérie AKNIN

Nous appeler
Selectionner cette offre Imprimer cette offre
Réf. 5031

Les offres similaires